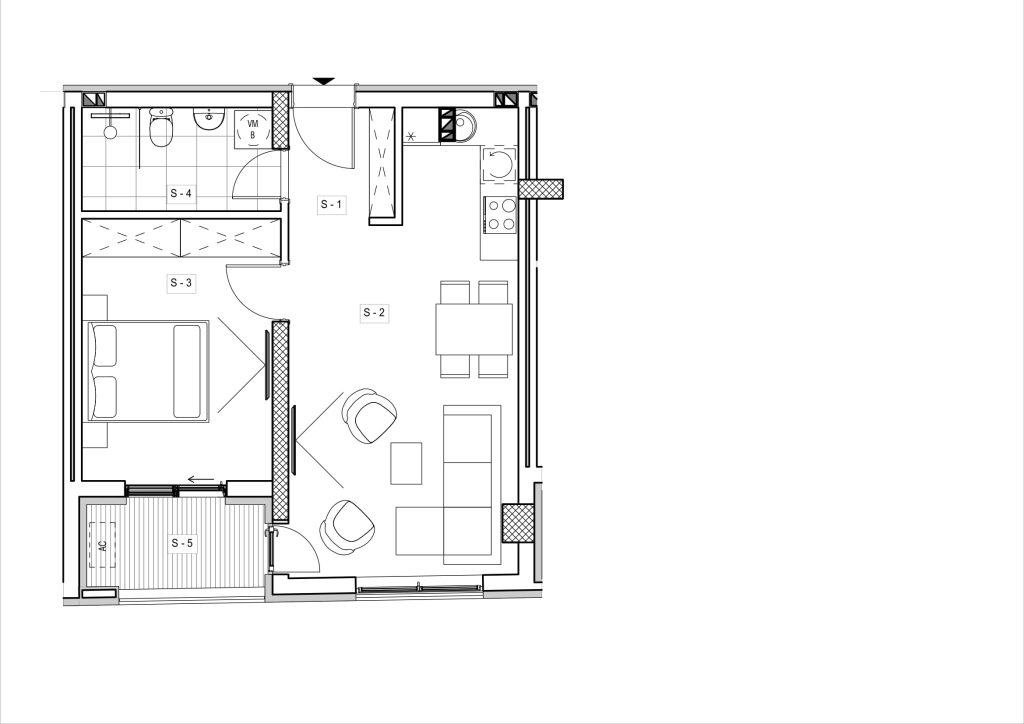
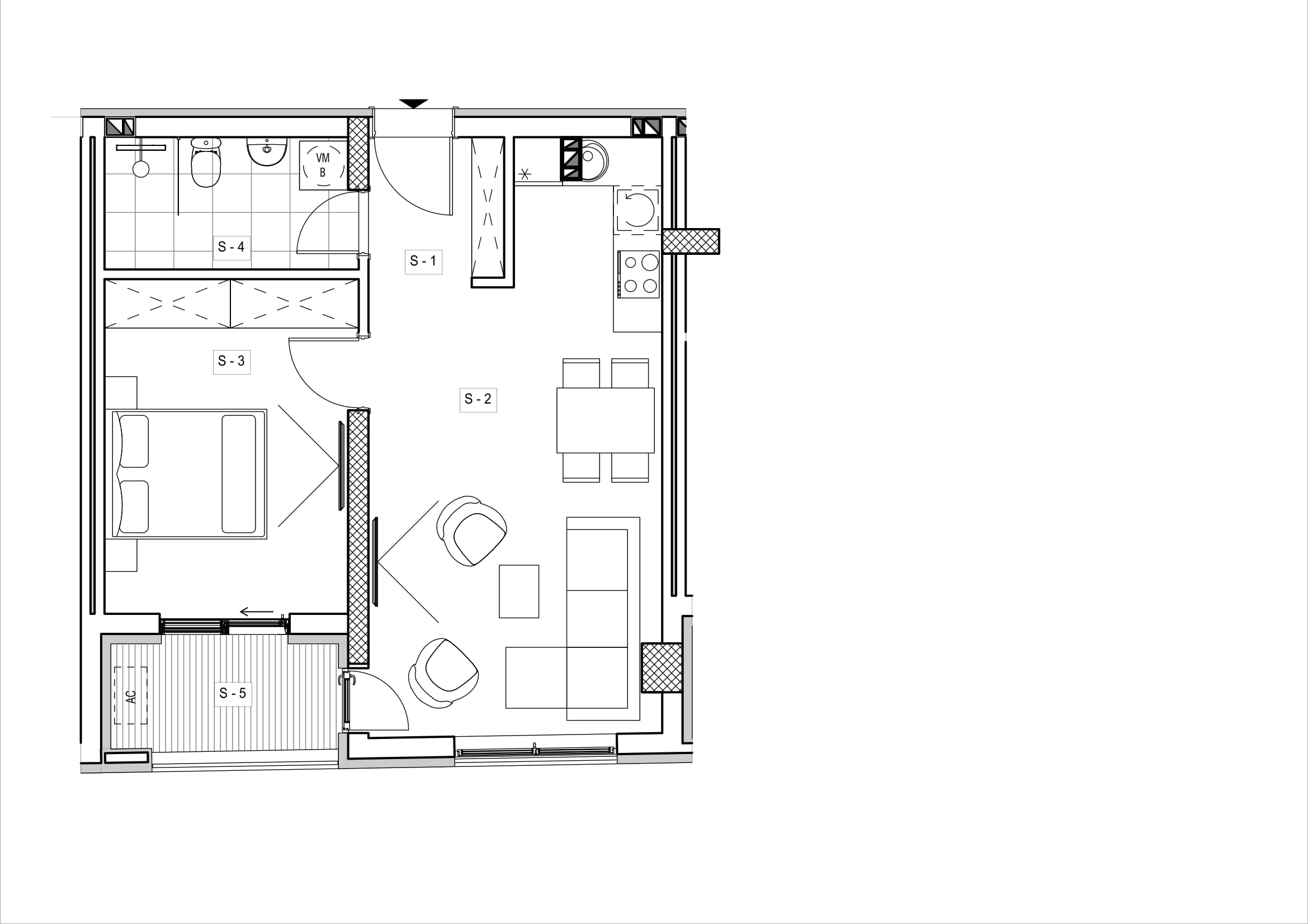
TIP 3 47.48m²

Ovaj jednoiposoban stan idealan je za samce ili parove koji žele funkcionalan i moderan prostor. Otvoren dnevni boravak sa kuhinjom i trpezarijom stvara svetao i prijatan ambijent. Spavaća soba nudi udoban prostor za odmor, a terasa je savršen kutak za uživanje na svežem vazduhu.
Kupatilo je moderno opremljeno, a dodatni detalji čine ovaj stan savršen za efikasan i udoban način života.

Stambene jedinice

Sprat II

Sprat III

Sprat IV

Centar plaza

065 827 60 49

Janka Veselinovića Niš

prodaja@centarplaza.rs

UP