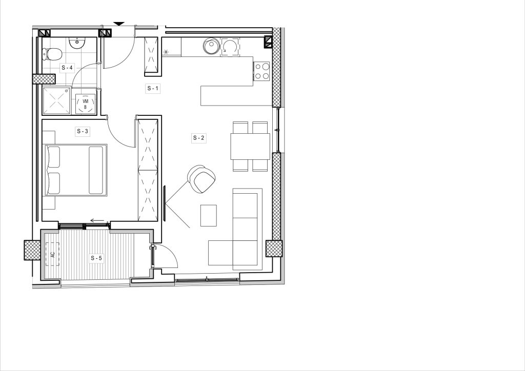
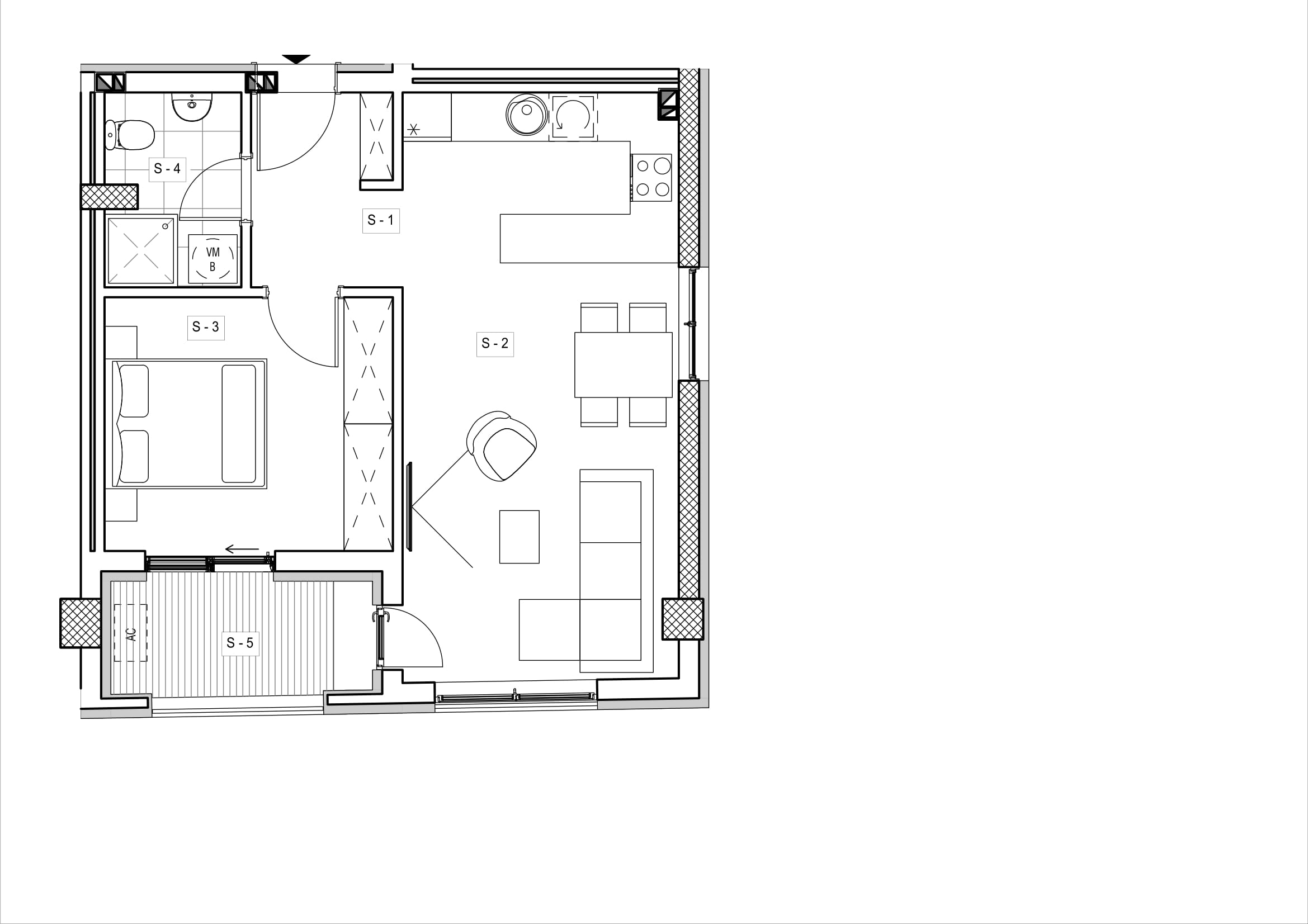
TIP 4 48.34m²

Ovaj dvosoban stan nudi savršen spoj udobnosti i funkcionalnosti. Otvoren dnevni boravak sa kuhinjom i trpezarijom stvara svetao i prostran prostor za svakodnevne aktivnosti. Spavaća soba pruža prijatan ambijent za miran odmor, dok terasa daje dodatni prostor za opuštanje.
Kupatilo je moderno opremljeno, a pažljivo osmišljen raspored stana obezbeđuje maksimalnu efikasnost u korišćenju prostora. Idealno za parove ili mlade porodice.

Stambene jedinice

Sprat II

Sprat III

Sprat IV

Centar plaza

065 827 60 49

Janka Veselinovića Niš

prodaja@centarplaza.rs

UP